Selling Projects

La Trobe Terraces

At Citeus Property Group, we design and deliver modern homes that embody the essence of urban living in New Zealand. With over 45 completed projects, we’ve earned a reputation as one of Auckland’s most trusted developers

Location

41 La Trobe Street, Pakuranga Heights

Completion Date

July 2026

Welcome to La Trobe Terraces

Welcome to La Trobe Terraces, an exclusive collection of seven thoughtfully designed residences, crafted to deliver contemporary comfort with timeless elegance.

Defined by refined architecture and beautifully composed interiors, every home in this boutique development has been carefully designed to achieve a seamless balance between aesthetic appeal and practical functionality. Each space reflects meticulous attention to detail, creating an environment that is both stylish and highly livable.

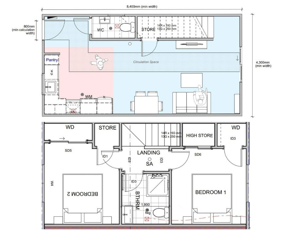
The project offers a selection of two- and three-bedroom residences, thoughtfully tailored to suit different lifestyles.

The two-bedroom homes feature 1.5 bathrooms, making them ideal for individuals, professionals, or couples beginning a new chapter in life.

The three-bedroom residences are designed for growing families and include three bathrooms, a dedicated car park, and an additional study or flexible sleep space, ensuring comfort, convenience, and versatility.

Beyond the homes themselves, La Trobe Terraces benefits from a carefully selected location that offers excellent connectivity to essential amenities, ensuring everyday conveniences are always within easy reach.

Amenities

  • Lloyd Elsmore Park 3 min away
  • Howick Historical Village 5 min away
  • Sylvia Park Shopping Centre 8 min away
  • Pakuranga Town Centre 3 min away
  • Woolworths Pakuranga Town Centre 6 min away
  • Sylvia Park Train Station 9 min away
  • Middlemore Hospital 16 min away
  • Howick Beach 10 min away
la-trobe-nearby-places

Typology

Unit Bedroom Bathroom Carparks/Garage Study Floor Plan
Lot 1 3 3 1 1 Type 1
Lot 2 3 3 1 1 Type 1
Lot 3 2 1.5 - - Type 2
Lot 4 2 1.5 - - Type 2
Lot 5 2 1.5 - - Type 2
Lot 6 2 1.5 - - Type 2
Lot 7 2 1.5 - - Type 2

Siteplan

La trobe Siteplan with multiple units layout

Floor Plans

Why Buy with Citeus?

Citeus offers thoughtfully designed homes in prime locations, combining quality craftsmanship with modern living. Each property is carefully developed to provide comfort, convenience, and long-term value — making it easier for you to find a home that truly fits your lifestyle.

Register your interest to get more information about available properties at Citeus.

Download full information pack to get complete overview of the project.

Let’s Find the Perfect Place for You

Complete the form below and let us help you find the perfect home that suits your lifestyle, preferences, and future plans.